Schöne 4- Raumwohnung mit großen Balkon
Im ruhigen Wohngebiet befindet sich die Wohnung im 2. OG eines sanierten Mehrfamilienhauses. In der Nähe gibt es zwei schöne Spielplätze und der Erzengler Wald mit seinem Freibad ist fußläufig erreichbar, ideal für Familien. Die Wohnung wird frisch saniert übergeben, Küche und Badezimmer sind jeweils mit Fenstern ausgestattet. Das Bad wird gefliest und besitzt eine Badewanne. Der große Balkon lädt zum verweilen und sonnen ein. Zur Wohnung gehören je ein abschließbarer Raum im Keller und auf dem Dachboden. Der Wäscheplatz und Trockenraum können gemeinschaftlich genutzt werden. Ein Internetanschluss mit bis zu 500 MBit ist vorhanden.
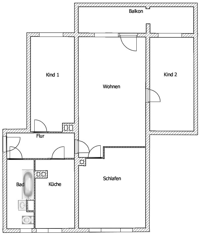
Auf den Fotos sind Hausansicht, Küche, Bad, Wohnzimmer, Schlaf- und Kinderzimmer sowie der Grundriss und das Exposé zu sehen. Bei den Bildern handelt es sich um Beispielbilder.












446,00 €
Schöne 4- Raumwohnung mit großen Balkon Im ruhigen Wohngebiet befindet…
385,00 €
Schöne 3-Raumwohnung mit neuem Balkon. Die Wohnung befindet sich im…
375,50 €
Tolle 3- Raumwohnung mit Balkon. Die Wohnung befindet sich im…
Wohnungsgenossenschaft
Brand-Erbisdorf eG
Fabrikstraße 5
09618 Brand-Erbisdorf
Telefon: 037322 2096
Telefax: 037322 810 68
E-Mail: info(at)wg-brand-erbisdorf.de
Mo -
Di 09:00-12:00 / 14:00-18:00
Mi 09:00-12:00
Do 09:00-12:00 / 14:00-18:00
Fr -
Wohnungsgenossenschaft
Brand-Erbisdorf eG
Fabrikstraße 5
09618 Brand-Erbisdorf
Telefon: 037322 2096
Telefax: 037322 810 68
E-Mail: info(at)wg-brand-erbisdorf.de